Продажа дома, Апрелевка, Парк Апрель ул, 5, Московская область
- Регион
- Московская область
| Адрес | Апрелевка, Парк Апрель ул, 5Объект на карте |
- Площадь дома
- 160.00 м2
- Площадь участка
- 1.00 сот.
- Дата обновления
- 15.04.2026
- Дата размещения
- 13.12.2025
Таунхаус с отделкой WHITE BOX в ЖК "Парк Апрель" в городе Апрелевка.
Расположен отдаленно от КПП, рядом с лесом, в доме 6. Общая площадь таунхауса 147,86 кв. м. - два этажа и мансардное пространство.
Выполнен монтаж всех коммуникаций: разведена электрическая проводка, канализация, система отопления, водоснабжения, вентиляции, подключен газ, установлен бойлер.
Сделаны межкомнатные перегородки, отштукатурены стены, заливка пола полусухой стяжкой, залита лестница.
Установлены внутрипольные конвекторы и батареи, в санузлах инсталляции для подвесных унитазов.
Теплый пол на 1 этаже и в санузлах.
Крыша таунхауса утеплена, врезаны дополнительные окна.
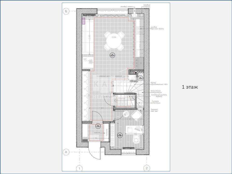
Планировка: 1 этаж - прихожая, комната, санузел, кухня-гостиная; 2 этаж - две комнаты, совмещенный санузел; 3 этаж - свободное пространство, есть возможность сделать одну или две изолированные комнаты, совмещенный санузел с окном в крыше. Таунхаус имеет земельный участок 0,75 сотки и два парковочных места. 1 собственник, никто не зарегистрирован. Возможна ипотека.
Жилой комплекс «Парк Апрель» находится в живописной части города Апрелевка, в 29 км от МКАД по Киевскому шоссе. Дорога на автомобиле от МКАД по современной многополосной трассе займет 20-25 минут, от границ Новой Москвы - 5-7 минут, от международного аэропорта Внуково - 15 минут.
Поселок окружен лесом и соседствует с престижными стародачными поселками "Фрунзевец" и "ГАБТ".
Строительные материалы бизнес-класса. Авторская концепция ландшафтного дизайна предполагает живописный центральный бульвар, а также дворы без машин, каждый из которых станет уникальной тематической площадкой.
ЖК располагает благоприятными условиями для спокойной семейной жизни и отдыха на природе. На территории комплекса организовано видеонаблюдение, круглосуточная охрана, пропускная система.
Расположен отдаленно от КПП, рядом с лесом, в доме 6. Общая площадь таунхауса 147,86 кв. м. - два этажа и мансардное пространство.
Выполнен монтаж всех коммуникаций: разведена электрическая проводка, канализация, система отопления, водоснабжения, вентиляции, подключен газ, установлен бойлер.
Сделаны межкомнатные перегородки, отштукатурены стены, заливка пола полусухой стяжкой, залита лестница.
Установлены внутрипольные конвекторы и батареи, в санузлах инсталляции для подвесных унитазов.
Теплый пол на 1 этаже и в санузлах.
Крыша таунхауса утеплена, врезаны дополнительные окна.
Планировка: 1 этаж - прихожая, комната, санузел, кухня-гостиная; 2 этаж - две комнаты, совмещенный санузел; 3 этаж - свободное пространство, есть возможность сделать одну или две изолированные комнаты, совмещенный санузел с окном в крыше. Таунхаус имеет земельный участок 0,75 сотки и два парковочных места. 1 собственник, никто не зарегистрирован. Возможна ипотека.
Жилой комплекс «Парк Апрель» находится в живописной части города Апрелевка, в 29 км от МКАД по Киевскому шоссе. Дорога на автомобиле от МКАД по современной многополосной трассе займет 20-25 минут, от границ Новой Москвы - 5-7 минут, от международного аэропорта Внуково - 15 минут.
Поселок окружен лесом и соседствует с престижными стародачными поселками "Фрунзевец" и "ГАБТ".
Строительные материалы бизнес-класса. Авторская концепция ландшафтного дизайна предполагает живописный центральный бульвар, а также дворы без машин, каждый из которых станет уникальной тематической площадкой.
ЖК располагает благоприятными условиями для спокойной семейной жизни и отдыха на природе. На территории комплекса организовано видеонаблюдение, круглосуточная охрана, пропускная система.

















