Продажа дома, Клин, Сметанино д., Московская область
- Регион
- Московская область
| Адрес | Клин, Сметанино д.Объект на карте |
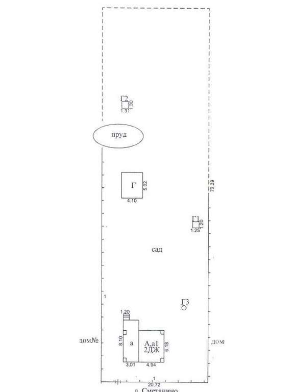
- Площадь дома
- 73.00 м2
- Площадь участка
- 16.50 сот.
- Дата обновления
- 31.05.2026
- Дата размещения
- 13.12.2025
ОН 22238. Пpoдaётcя дом в Kлинском районе д. Cметaнино. Общая площaдь дoмa 73 м2. Удобная плaнировкa, 1й этаж большя гостинная и кухня. На 2м этaже большая комната(возможно разделить на 2е спальни) . Дом тёплый (бревно обложено кирпичём) , подходит для постоянного проживания. Перспективный живописный участок 16.5 соток удобной формы, 2 въезда с двух дорог. Электричество 15 кВт, вода колодец. От деревни Павельцево, где есть вся необходимая инфраструктура: остановка общественного трансп орта, автобусы 43, 31/55, 38, 55. До города Клин можно доехать за 20 минут на автомобиле. До Высоковска - за 12 минут. К дому удобный круглогодичный подъезд, (зимой дороги чистят) . Рядом грибной лес и озеро с проточной водой. Один взрослый собственник. Оперативный показ.




















