Продажа коттеджа, д Поповка, Изумрудная ул, 12, Московская область
- Регион
- Московская область
| Адрес | д Поповка, Изумрудная ул, 12Объект на карте |
- Площадь дома
- 400.00 м2
- Площадь участка
- 15.00 сот.
- Дата обновления
- 17.04.2026
- Дата размещения
- 15.01.2026
Просторный Коттедж в КП "Серебряная лагуна" на прилесном участке!
Коттедж расположен в живописном месте вблизи г. Раменское и неподалеку реки Гжелка на участке 15 соток с выходом в смешанную лесную чащу.
Конструктив:
Фундамент - кессонный заливной; Стены - керамический блок "Porotherm" + отделочный кирпич; Кровля - мягкая черепица;
Коммуникации: Водоснабжение - центральное + дополнительно скважина 60м; Водоотведение - центральное; Отопление - магистральный газ (подведен в дом) ; Электричество - 15 кВт.
Планировка:
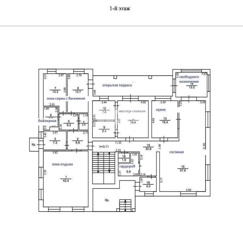
1 этаж - входная группа, бойлерная, гостиная, зона кухни, мастер-спальня, зона сауны с бассейном, зона отдыха, открытая терраса с видом на лес.
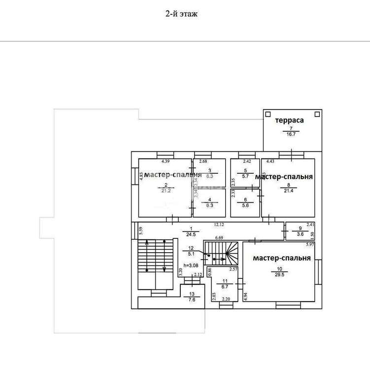
2 этаж- три изолированных мастер-спальни с собственным сан. узлом и гардеробной, открытая терраса.
3 этаж - помещение свободного назначения.
Инфраструктура:
В шаговой доступности магазины, маркетплейсы, автобусная остановка. В 5-ти минутах езды: река Гжелка с зоной отдыха и рыболовной базой, общеобразовательная школа, детский сад, конный клуб и многое другое. Хорошая транспортная доступность.
Показ в любое удобное для вас время!
Коттедж расположен в живописном месте вблизи г. Раменское и неподалеку реки Гжелка на участке 15 соток с выходом в смешанную лесную чащу.
Конструктив:
Фундамент - кессонный заливной; Стены - керамический блок "Porotherm" + отделочный кирпич; Кровля - мягкая черепица;
Коммуникации: Водоснабжение - центральное + дополнительно скважина 60м; Водоотведение - центральное; Отопление - магистральный газ (подведен в дом) ; Электричество - 15 кВт.
Планировка:
1 этаж - входная группа, бойлерная, гостиная, зона кухни, мастер-спальня, зона сауны с бассейном, зона отдыха, открытая терраса с видом на лес.
2 этаж- три изолированных мастер-спальни с собственным сан. узлом и гардеробной, открытая терраса.
3 этаж - помещение свободного назначения.
Инфраструктура:
В шаговой доступности магазины, маркетплейсы, автобусная остановка. В 5-ти минутах езды: река Гжелка с зоной отдыха и рыболовной базой, общеобразовательная школа, детский сад, конный клуб и многое другое. Хорошая транспортная доступность.
Показ в любое удобное для вас время!

























