Продажа производственно-складского помещения, д Спас-Каменка, Спас-Каменка кп, 1, Московская область
- Регион
- Московская область
| Адрес | д Спас-Каменка, Спас-Каменка кп, 1Объект на карте |
- Этаж
- 1 этаж в 2-этажном доме
- Общая площадь
- 604.91 м2
- Дата обновления
- 17.04.2026
- Дата размещения
- 09.04.2026
Продается новое производственно-складское помещение по Дмитровскому шоссе - ICPARK КЛЮЧ.
Назначение:
под производство и склад
Продажа осуществляется напрямую от собственника парка, что гарантирует отсутствие каких-либо комиссий и скрытых платежей!
Объект расположен в северном направлении с выездом на Дмитровское шоссе (4 км) . Расстояние от МКАД - 30 км.
Координаты: 56.148996, 37.449949
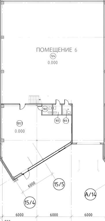
Формат Point. Блок А, Бокс 6.
Планировочное решение включает в себя пространство для производства, склад или логистику 356,85 кв. м, а также офисную часть 120,60 кв. м.
Наличие мезонина.
ОСНОВНЫЕ ХАРАКТЕРИСТИКИ:
- Класс: A
- Температура: Сухой склад
- Автоматическая спринклерная система пожаротушения
- Высота: 8 м
- Нагрузка на пол: 5 т/кв. м
- Высококачественные бетонные полы с антипылевым покрытием и упрочняющим слоем
- Сетка колонн: 12x24
- Ворота: докового типа и на нулевой отметке
КОММУНИКАЦИИ:
- Электричество: 25 кВт (возможно увеличение мощности)
- Вентиляция: приточно-вытяжная
- Водоснабжение, канализация
- Индивидуальные приборы учета
ИНФРАСТРУКТУРА:
- Парковки для транспорта: для грузовых авто — 2 места, для легкового авто — 4 места
- Доступ к производственно-складским помещениям 24/7
- Охраняемая территория
- Видеонаблюдение
- Скоростной интернет и телефония
ДОПОЛНИТЕЛЬНО:
- Собственная профессиональная управляющая компания
- Клининг
- Консьерж-сервис
- Мобильное приложение
- Маркетплейс услуг
- Кафе на территории
- Зоны отдыха и спортивные площадки
Готовы предоставить подробную информацию и организовать просмотр!
Назначение:
под производство и склад
Продажа осуществляется напрямую от собственника парка, что гарантирует отсутствие каких-либо комиссий и скрытых платежей!
Объект расположен в северном направлении с выездом на Дмитровское шоссе (4 км) . Расстояние от МКАД - 30 км.
Координаты: 56.148996, 37.449949
Формат Point. Блок А, Бокс 6.
Планировочное решение включает в себя пространство для производства, склад или логистику 356,85 кв. м, а также офисную часть 120,60 кв. м.
Наличие мезонина.
ОСНОВНЫЕ ХАРАКТЕРИСТИКИ:
- Класс: A
- Температура: Сухой склад
- Автоматическая спринклерная система пожаротушения
- Высота: 8 м
- Нагрузка на пол: 5 т/кв. м
- Высококачественные бетонные полы с антипылевым покрытием и упрочняющим слоем
- Сетка колонн: 12x24
- Ворота: докового типа и на нулевой отметке
КОММУНИКАЦИИ:
- Электричество: 25 кВт (возможно увеличение мощности)
- Вентиляция: приточно-вытяжная
- Водоснабжение, канализация
- Индивидуальные приборы учета
ИНФРАСТРУКТУРА:
- Парковки для транспорта: для грузовых авто — 2 места, для легкового авто — 4 места
- Доступ к производственно-складским помещениям 24/7
- Охраняемая территория
- Видеонаблюдение
- Скоростной интернет и телефония
ДОПОЛНИТЕЛЬНО:
- Собственная профессиональная управляющая компания
- Клининг
- Консьерж-сервис
- Мобильное приложение
- Маркетплейс услуг
- Кафе на территории
- Зоны отдыха и спортивные площадки
Готовы предоставить подробную информацию и организовать просмотр!









