Аренда помещения различного назначения, Балашиха, Дмитриева ул., 7, Московская область
- Регион
- Московская область
| Адрес | Балашиха, Дмитриева ул., 7Объект на карте |
- Этаж
- 1 этаж в 17-этажном доме
- Общая площадь
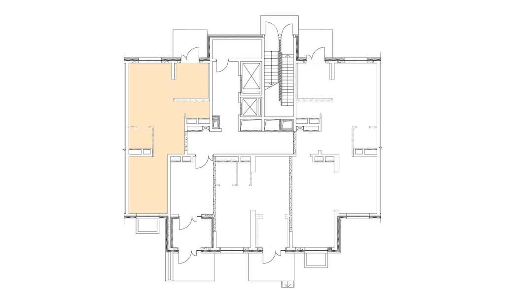
- 50.90 м2
- Дата обновления
- 10.04.2026
- Дата размещения
- 06.02.2026
Сдаётся коммерческое помещение в ЖК «Новая Алексеевская роща»
Коммерческое помещение площадью 50,9 кв. м расположено на 1-м этаже жилого дома комфорт-класса в развивающемся районе Балашихи. ЖК «Новая Алексеевская роща» находится всего в 6 км от МКАД по Щёлковскому шоссе, вблизи станции метро «Щёлковская», в окружении плотной жилой застройки и природных зон - рядом река Пехорка и национальный парк «Лосиный Остров».
Локация активно развивается и формирует устойчивый пешеходный и автомобильный трафик. Комплекс ориентирован на постоянное проживание семей, что обеспечивает высокий спрос на повседневные товары и услуги. Дополнительный поток создаёт собственная инфраструктура ЖК: детский сад, школа и поликлиника.
Ключевые преимущества:
Отдельный вход с улицы
Витринное остекление, обеспечивающее хорошую видимость и привлечение клиентов
Место под вывеску
Помещение без отделки - возможность реализовать любой формат бизнеса
Все инженерные коммуникации подключены (вода, канализация, электричество, отопление)
Выделенная мощность: 10,2кВт
Высота потолков: 3 м
Предоставляются арендные каникулы
Помещение подойдёт для размещения магазина, кафе или пекарни, аптеки, салона красоты, пункта выдачи заказов, офиса услуг или медицинского кабинета.
ЖК «Новая Алексеевская роща» - это перспективная локация с растущей аудиторией и дефицитом качественной коммерческой инфраструктуры, что создаёт благоприятные условия для стабильного и прибыльного бизнеса.
Аренда без посредников - напрямую от собственника: УК «Аструм Недвижимость» (ГК «Гранель») .
Наши менеджеры помогут подобрать оптимальное помещение под ваши задачи. Свяжитесь с нами, чтобы получить подробную информацию.
Коммерческое помещение площадью 50,9 кв. м расположено на 1-м этаже жилого дома комфорт-класса в развивающемся районе Балашихи. ЖК «Новая Алексеевская роща» находится всего в 6 км от МКАД по Щёлковскому шоссе, вблизи станции метро «Щёлковская», в окружении плотной жилой застройки и природных зон - рядом река Пехорка и национальный парк «Лосиный Остров».
Локация активно развивается и формирует устойчивый пешеходный и автомобильный трафик. Комплекс ориентирован на постоянное проживание семей, что обеспечивает высокий спрос на повседневные товары и услуги. Дополнительный поток создаёт собственная инфраструктура ЖК: детский сад, школа и поликлиника.
Ключевые преимущества:
Отдельный вход с улицы
Витринное остекление, обеспечивающее хорошую видимость и привлечение клиентов
Место под вывеску
Помещение без отделки - возможность реализовать любой формат бизнеса
Все инженерные коммуникации подключены (вода, канализация, электричество, отопление)
Выделенная мощность: 10,2кВт
Высота потолков: 3 м
Предоставляются арендные каникулы
Помещение подойдёт для размещения магазина, кафе или пекарни, аптеки, салона красоты, пункта выдачи заказов, офиса услуг или медицинского кабинета.
ЖК «Новая Алексеевская роща» - это перспективная локация с растущей аудиторией и дефицитом качественной коммерческой инфраструктуры, что создаёт благоприятные условия для стабильного и прибыльного бизнеса.
Аренда без посредников - напрямую от собственника: УК «Аструм Недвижимость» (ГК «Гранель») .
Наши менеджеры помогут подобрать оптимальное помещение под ваши задачи. Свяжитесь с нами, чтобы получить подробную информацию.













