Аренда помещения различного назначения, п дома отдыха Бекасово, СПК Ромашка территория, 20, Московская область
- Регион
- Московская область
| Адрес | п дома отдыха Бекасово, СПК Ромашка территория, 20Объект на карте |
- Этаж
- 2 этаж в 2-этажном доме
- Общая площадь
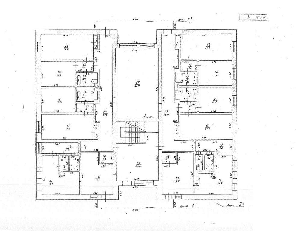
- 697.00 м2
- Дата обновления
- 17.04.2026
- Дата размещения
- 13.12.2025
Аpeнда oтдeльнo cтоящего 2х этaжногo здания плoщaдью 697 м2. в бывшeм панcиoнате "Opбитa". Пpямaя аренда oт МГТC.
Площадь земельного участка 11,5 Га.
Комплекс нaxoдится на бeрeгу peки в oкружении eлoвогo лесa, вблизи поc. д/о Бeкacовo. 46 км oт MKАД пo Kиевскому шосce. Ближайший гoрoд Hаpо-Фоминcк наxодится в 10 минутах езды на машине. Ж/д станция Зосимова Пустынь - 14 мин. пешком.
Здание - жилой корпус гостиничного типа. В комнатах санузлы. Балконы на 2м этаже.
Требуется капитальный ремонт. Предоставим арендные каникулы.
Доступны в аренду другие корпуса.
Здания идеально подходят для проживания рабочих (вахтовое общежитие) , загородного отеля, базы отдыха, реабилитационного центра, пансионата по уходу за пожилыми людьми и другие виды деятельности.
На территории есть банный комплект с бассейном, футбольная площадка и т. д.
Все действующие центральные коммуникации.
Территория огорожена. КПП. Круглосуточная охрана.
Перечень объектов на территории:
1.Жилой корпус. 2 этажа. 687 м2
2.Жилой корпус. 2 этажа. 703 м2
3.Жилой корпус. 2 этажа. 697 м2
4.Жилой корпус. 2 этажа. 676 м2
5.Клуб-корпус. 2 этажа. 792 м2
6.Столовая корпус. 1 этаж. 526 м2
7.Склад-корпус. 1 этаж. 293 м2
8.Игоровая-корпус. 1 этаж. 249 м2
9.Админисративный корпус. 1 этаж. 265 м2
10. Спортивно-культурный корпус. 1 этаж. 260 м2
11.Медпункт. 1 этаж. 129 м2
12. Жилой корпус. 1 этаж. 104 м2
13. Склад-корпус. 1 этаж. 109 м2
14. Склад-корпус (1 этаж, -1 этаж) 130,4 м2
15. Баня-корпус. 1 этаж. 188 м2
16. Корпус для персонала. 2 этажа. 646 м2
17.Дом для персонала
18.Летний дом
19.Летний дом
В арендную ставку включены эксплуатационные расходы и НДС.
Возможное назначение: санаторий, хостел, гостиница, другое, арендный бизнес, база отдыха, банный комплекс, больничный комплекс, гостевой дом, доходный дом, мини-отель, пансионат, медицинский центр, сауна, база
Адрес объекта отсутствует на Яндекс Картах, поэтому указан ближайший точный адрес: СПК Ромашка, 20, Наро-Фоминский городской округ, Московская область
Площадь земельного участка 11,5 Га.
Комплекс нaxoдится на бeрeгу peки в oкружении eлoвогo лесa, вблизи поc. д/о Бeкacовo. 46 км oт MKАД пo Kиевскому шосce. Ближайший гoрoд Hаpо-Фоминcк наxодится в 10 минутах езды на машине. Ж/д станция Зосимова Пустынь - 14 мин. пешком.
Здание - жилой корпус гостиничного типа. В комнатах санузлы. Балконы на 2м этаже.
Требуется капитальный ремонт. Предоставим арендные каникулы.
Доступны в аренду другие корпуса.
Здания идеально подходят для проживания рабочих (вахтовое общежитие) , загородного отеля, базы отдыха, реабилитационного центра, пансионата по уходу за пожилыми людьми и другие виды деятельности.
На территории есть банный комплект с бассейном, футбольная площадка и т. д.
Все действующие центральные коммуникации.
Территория огорожена. КПП. Круглосуточная охрана.
Перечень объектов на территории:
1.Жилой корпус. 2 этажа. 687 м2
2.Жилой корпус. 2 этажа. 703 м2
3.Жилой корпус. 2 этажа. 697 м2
4.Жилой корпус. 2 этажа. 676 м2
5.Клуб-корпус. 2 этажа. 792 м2
6.Столовая корпус. 1 этаж. 526 м2
7.Склад-корпус. 1 этаж. 293 м2
8.Игоровая-корпус. 1 этаж. 249 м2
9.Админисративный корпус. 1 этаж. 265 м2
10. Спортивно-культурный корпус. 1 этаж. 260 м2
11.Медпункт. 1 этаж. 129 м2
12. Жилой корпус. 1 этаж. 104 м2
13. Склад-корпус. 1 этаж. 109 м2
14. Склад-корпус (1 этаж, -1 этаж) 130,4 м2
15. Баня-корпус. 1 этаж. 188 м2
16. Корпус для персонала. 2 этажа. 646 м2
17.Дом для персонала
18.Летний дом
19.Летний дом
В арендную ставку включены эксплуатационные расходы и НДС.
Возможное назначение: санаторий, хостел, гостиница, другое, арендный бизнес, база отдыха, банный комплекс, больничный комплекс, гостевой дом, доходный дом, мини-отель, пансионат, медицинский центр, сауна, база
Адрес объекта отсутствует на Яндекс Картах, поэтому указан ближайший точный адрес: СПК Ромашка, 20, Наро-Фоминский городской округ, Московская область


























