Аренда 4-комнатной квартиры, Балашиха, Гагарина ул., 6, Московская область
- Регион
- Московская область
| Адрес | Балашиха, Гагарина ул., 6Объект на карте |
- Тип дома
- Кирпичный
- Этаж
- 3 этаж в 10-этажном доме
- Кол-во комнат
- 4
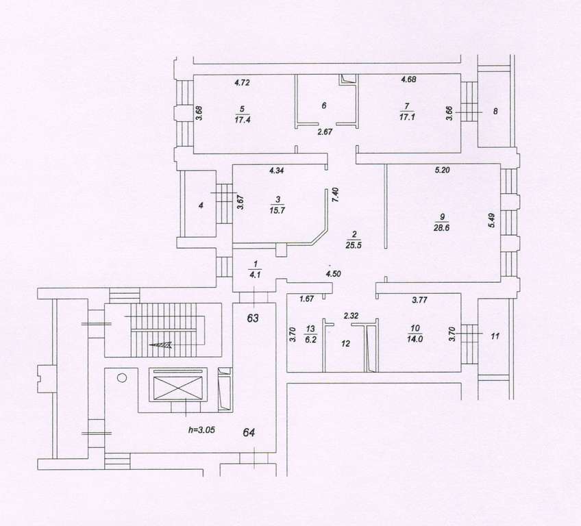
- Общая площадь
- 145.70 м2
- Жилая площадь
- 78.80 м2
- Площадь кухни
- 14.00 м2
- Дата обновления
- 17.04.2026
- Дата размещения
- 13.12.2025
Сдается 4х комнатная квартира общей площадью 145,7 кв. м. Комнаты большие, просторные, светлые. Кухня 14 кв. м., имеется 3 лоджии.
Ремонт свежий, имеется стиральная машинка, холодильник.
Две ванные (в одной ванная, в другой душевая кабинка) и два санузла.
Преимущественно семье. Стоимость 70 000 руб., без учета коммунальных расходов. Коммуналка оплачивается отдельно.
Во дворе детская площадка
Ремонт свежий, имеется стиральная машинка, холодильник.
Две ванные (в одной ванная, в другой душевая кабинка) и два санузла.
Преимущественно семье. Стоимость 70 000 руб., без учета коммунальных расходов. Коммуналка оплачивается отдельно.
Во дворе детская площадка















